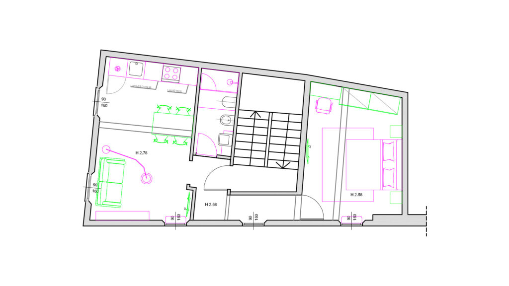
Tre appartamenti luminosi di cui uno, all’ultimo piano, con un terrazzo che regala una vista unica.
L’intervento di ristrutturazione è pensato per realizzare unità abitative contemporanee e raffinate con finiture di e materiali di prima scelta. S. Stefano Boutique Apartments rappresenta un’opportunità unica sia come investimento immobiliare che come abitazione.
Una posizione strategica sia per godere appieno della vita del centro storico che per muoversi con agilità verso tutte le altre direzioni.











